HEALTHCARE
FLATIRON PEDIATRICS
LOCATION: NEW YORK, NY
SIZE: 1,600 SF
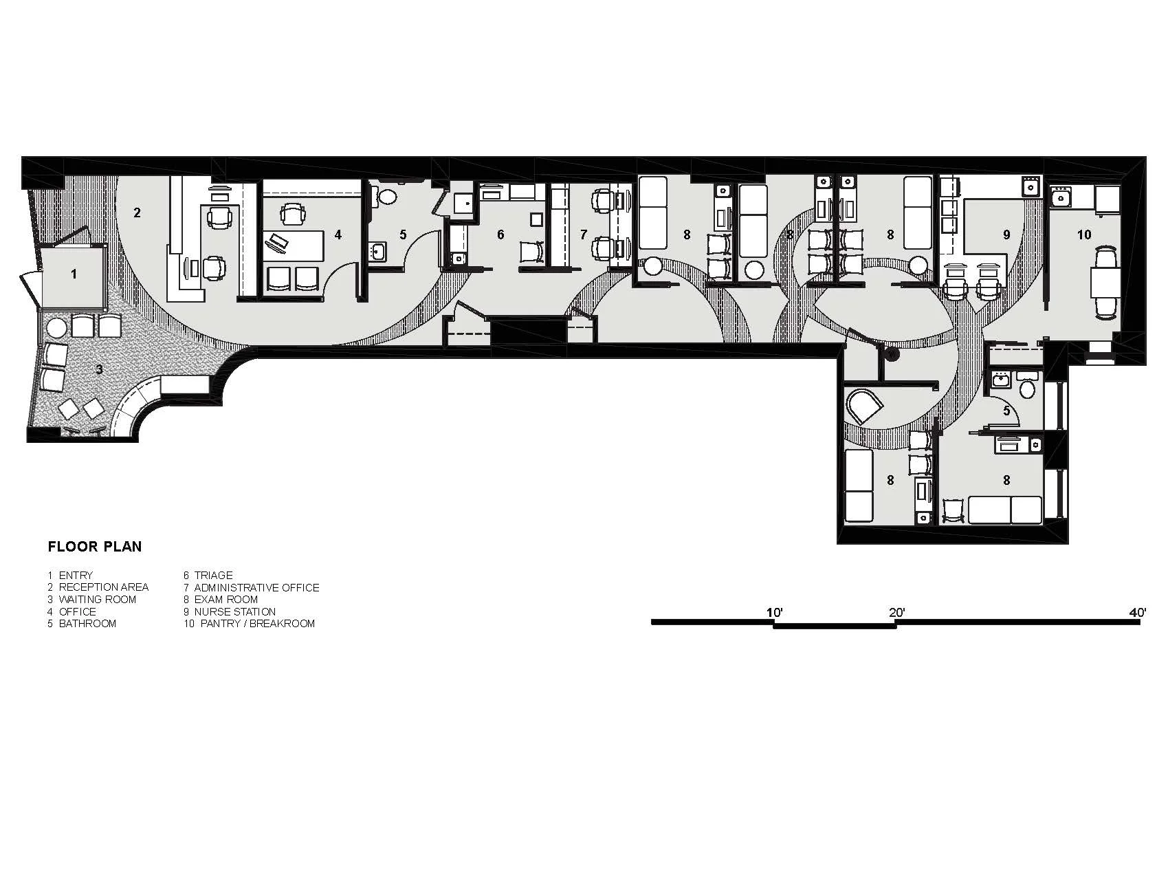
Flatiron Pediatrics is a new private practice pediatrician’s office located in New York City’s vibrant Flatiron District. TPD Architecture designed this new space to appeal to the surrounding high-end neighborhood demographic while maintaining a design aesthetic catering to children and toddlers. Families and patients are greeted by a sophisticated yet warm reception area that includes a custom designed aquarium and a children’s play area complete with custom iPad stations. The office also includes a triage room, five exam rooms, a nurse’s station, two offices and a staff break room. TPDA has created a welcoming, nurturing medical environment through the varied use of color, wall-covering, flooring, and custom millwork throughout, fostering a more pleasant experience.










